+49-171 183 4467
Kvitfjell Varden Lodge
Exklusive Ferienhäuser direkt am Skihang
in einem der schönsten Skigebiete Nordeuropas. Das ist eine echte Rarität und eignet sich bestens zu Renditezwecken. Oder du geniesst dein Hideaway einfach selber!
Da es sich hierbei um ein Projektfeld handelt, sind die Hüttenmodelle jeweils für die Grundstücke vorgeschrieben. Es sind nur noch wenige Grundstück in diesem exklusiven Feld verfügbar.

Varden 1 & 2

Varden 1 ab 7.243.000 NOK
Varden 2 ab 6.991.000 NOK
inklusive Grundstück, Grundarbeiten, Küche, Badeinrichtung, Grasdach und Kaminofen
Diese Hütte hat einen außergewöhnlichen Grundriss mit vier Schlafzimmern, zwei Bädern und einer Sauna. Im Hauptgeschoß ist das geräumige Wohnzimmer, die Küche,ein Bad und der Ausgang zur Veranda.Das Varden 1 hat den Eingang von dem Hauptgeschoß und das Varden 2 hat den Eingang in der Unteretage.
Grundriss Varden 1

Grundriss Untergeschoss

Grundriss Obergeschoss
Eingang im Untergeschoss
Geeignet für die Grundstücke 36, 37, 38 und 39
Nutzfläche: 134 qm
Wohnfläche: 110 qm
Schlafzimmer: 4
Bäder: 2 Sauna: ja
Terrasse: 23,4 qm
Balkon 7,8 qm
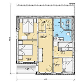
Grundriss Varden 2

Grundriss Untergeschoss

Grundriss Obergeschoss
Eingang im Obergeschoss
Geeignet für die Grundstücke 16 und 18
Nutzfläche: 127 qm
Wohnfläche: 111 qm
Schlafzimmer: 4
Bäder: 2 Sauna: ja
Terrasse: 23 qm






















